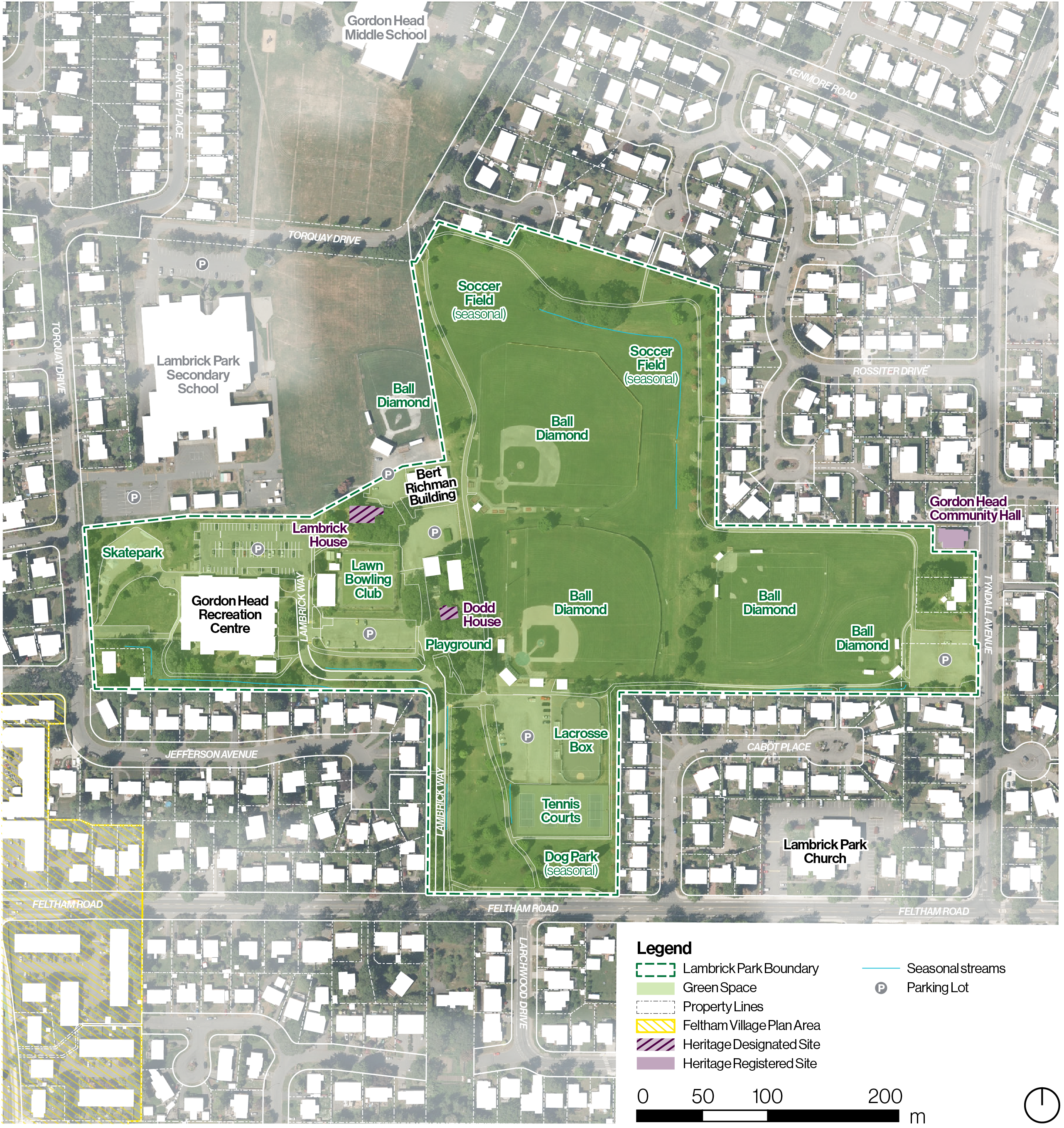
Saanich’s Parks, Recreation, and Community Services (PRCS) Department is planning for the future renewal of the Lambrick Park Campus. This will start with the development of conceptual design options for the site, which serves as an important sports, recreation, and community space for residents District-wide and within the region. The Gordon Head Recreation Centre, sports fields, natural areas, heritage buildings, and supporting facilities are all part of the project scope.
About the Project
The planning and concept design process will help us understand the area and its context, community needs, programming options, financial strategies, and phasing approaches to transform Lambrick into a vibrant destination for a growing and evolving community. The project aims to:
- Modernize and expand recreation amenities
- Improve accessibility and safety for all users
- Enhance connectivity to surrounding areas
- Support a growing and diverse community
- Promote environmental stewardship

Project Process
The planning and conceptual design phase of this project commenced in spring 2025 and is anticipated to be completed in 2027.

Throughout this summer and fall, we will be gathering information and completing early technical analysis to understand Lambrick Park Campus today.
Current Engagement Opportunities
Register and stay tuned on HelloSaanich for upcoming opportunities to engage on the Lambrick Park Campus Renewal project starting this fall as we explore community needs, preferences, and potential opportunities for the future. Input will be used to develop concept options for community review later in the process.
| What | When | Where |
| Open House (in-person) |
|
Gordon Head Middle School (1671 Kenmore Road) *Childminding will be provided |
| Community Info Session (virtual) |
|
Registration is not required. Join the webinar. |
| Community Info Session (virtual) |
|
Registration is not required. Join the webinar. |
| HelloSaanich Questionnaire |
|
Register on HelloSaanich to take the Questionnaire and follow the project for updates. |
| Pop-up events |
|
Details to come |